601.268.1900 Mon-Fri 8:00am-5:30pm | Sat 9:00am-4:00pm
Live Oak Homes

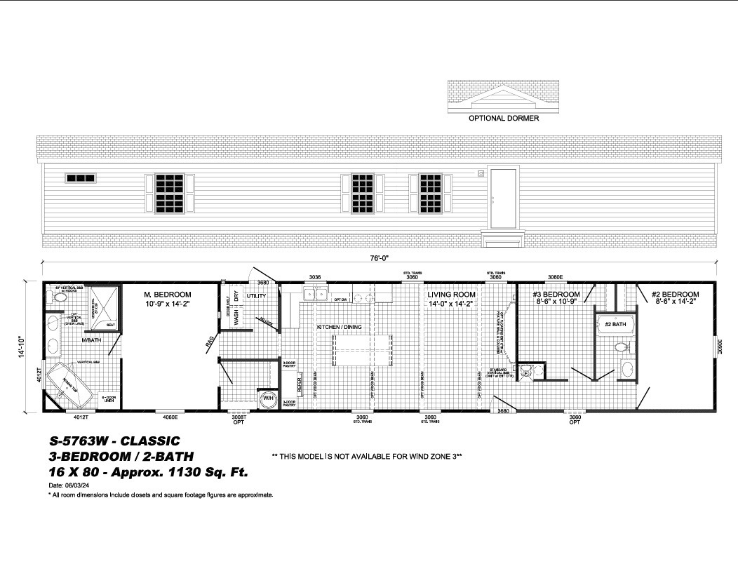
Slugger

INQUIRE TODAY

DETAILS

In Stock

The Slugger by Live Oak Homes offers the perfect blend of comfort, efficiency, and modern design. This beautifully crafted manufactured home features an open-concept layout that connects the living room, kitchen, and dining areas, creating a spacious and inviting atmosphere ideal for families or entertaining guests. With stylish finishes, quality materials, and smart design details throughout, the Slugger delivers exceptional value without compromising on style. Built with Live Oak Homes’ commitment to craftsmanship and durability, it provides a warm, welcoming space you’ll be proud to call home.

3D TOUR

FLOOR PLANS

HOME FEATURES

Split Bedrooms

Open Concept

Utility Room with Washer and Dryer Space

Master Ensuite with Walk-in Shower and Separate Garden Tub

Get in Touch

Have questions about our homes or financing options? We're here to help!

CONTACT US