601.268.1900 Mon-Fri 8:00am-5:30pm | Sat 9:00am-4:00pm
Kabco Builders

KB Series

Fargo

INQUIRE TODAY

DETAILS

Special Order

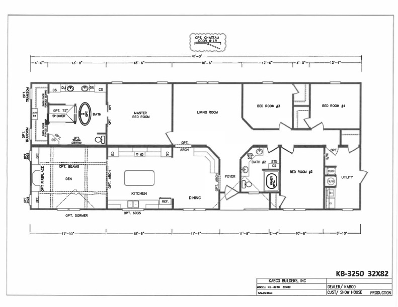
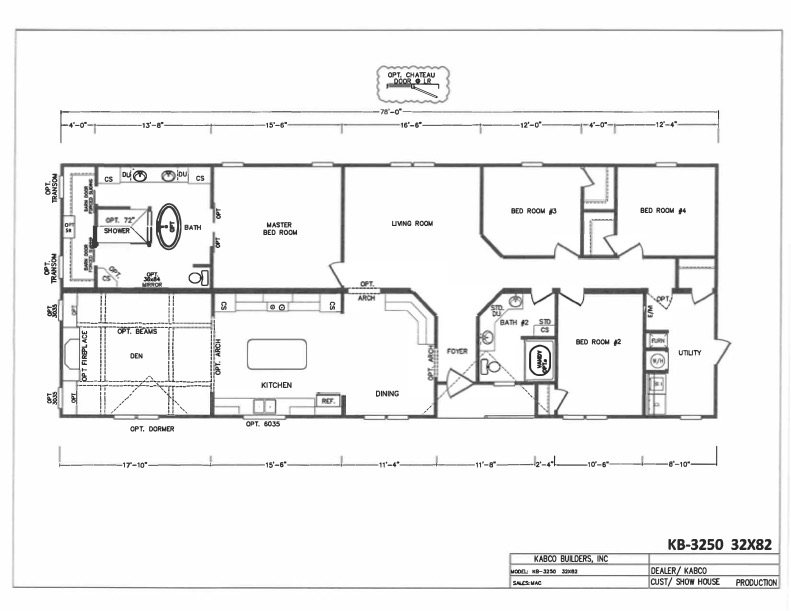
Welcome the newest addition to the KB Series Family: the Fargo by KABCO Builders—a beautifully crafted 4-bed, 2-bath home designed for growing families and modern lifestyles. This thoughtfully designed floor plan features a spacious family room perfect for gathering and entertaining, while the private master suite provides a relaxing retreat with ample space and comfort. The Fargo brings together style and function, offering generous living areas, smart storage solutions, and quality craftsmanship throughout. Whether you’re hosting guests or enjoying quiet time at home, this model delivers the perfect balance of practicality and elegance.

3D TOUR

FLOOR PLANS

HOME FEATURES

Drawer Stack Master Bath

White Lined Cabinets Both Baths

Bevel Mirrors Both Baths

Deluxe Wall Lights at all Lavatories

Fiberglass Tubs & Shower

48" Shower Master Bath with Door

60" 1 Piece Tub 2nd Bath

Deluxe Soaker Tub Master Bath

Porcelain Lavatory Sinks in Baths

2x4 Studs 16" O.C. TIO

48" Trusses 16" O.C.

(Nominal 4/12 Roof Pitch)

7/16" OSB Roof Decking

Fiberglass Shingles

"Hardi-Plank" Fascia & Eaves

12" Overhangs Vented All 4 Sides

Attic Vents

OSB or Plywood Exterior Wrap (Market Availability)

Premium Vinyl Siding

Paneled Shutters 7 Selections

White Vinyl Thermopane Window (LowE)

Stained Glass Window Behind Tub (If Applicable)

Thermopane Picture Window L/R Model Specific

Steel Front Door with Sunburst Design

Full View Storm Door on Front

9 Lite Cottage Door on Back

Dead Bolt Locks all Exterior Doors

11-11-19 Insulation

Dormer @ Front Door Side

FRAME & FLOOR Solid 12" I-Beam (All Models)

FRAME & FLOOR Full Length Outriggers

FRAME & FLOOR 2x8 Floor Joist 16" O.C.

FRAME & FLOOR 5/8" Tongue & Groove Plywood Floors

FRAME & FLOOR Trackless Carpet

FRAME & FLOOR Rebond Carpet Pad

FRAME & FLOOR 16" Floor Tile (No Roll Goods)

Solid Wood Cabinet Doors

Solid Wood Door Frames

30" Overhead Cabinets

Deluxe Hidden Hinges in all Cabinets

Middle Shelves in Base & OH Cabinets

Rolled Countertops

Deluxe Faucets T/O

Tilt Drawers at All Sinks (Kitchen & Baths)

Drawers Above Doors T/O Kitchen

Grass Roller Drawer System @ Kit

Deeper Basin Stainless Steel Sink

Deluxe High Rise Kitchen Faucet with Sprayer

LED Recessed Canister Lighting (Kitchen)

18" FF Refrigerator - Dishwasher - Electric Range

Deluxe Range Hood With Canopy

200 Amp Service

Air Ready Furnace

Water Cut-Offs TIO

Master Water Supply Cut-Off

40 Gallon Double Element Electric Water Heater

Pex Water Line System

Chandelier Dining Room

Ceiling Fan L/R

Deluxe Light Fixtures T/O

Get in Touch

Have questions about our homes or financing options? We're here to help!

CONTACT US